


Teren AUTORIZAT 2 DUPLEX | 1400mp Front 22m | Zona OMNIA
Apahida, Omnia Residence 153
200.000€
- ID:WST3286
- S. teren:1400.00 mp
- Front stradal:22.00 m
- Nr. fronturi:1
- Clasificare teren:Intravilan
- Regim inaltime:D+P+1
Descriere
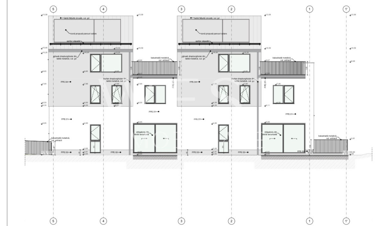
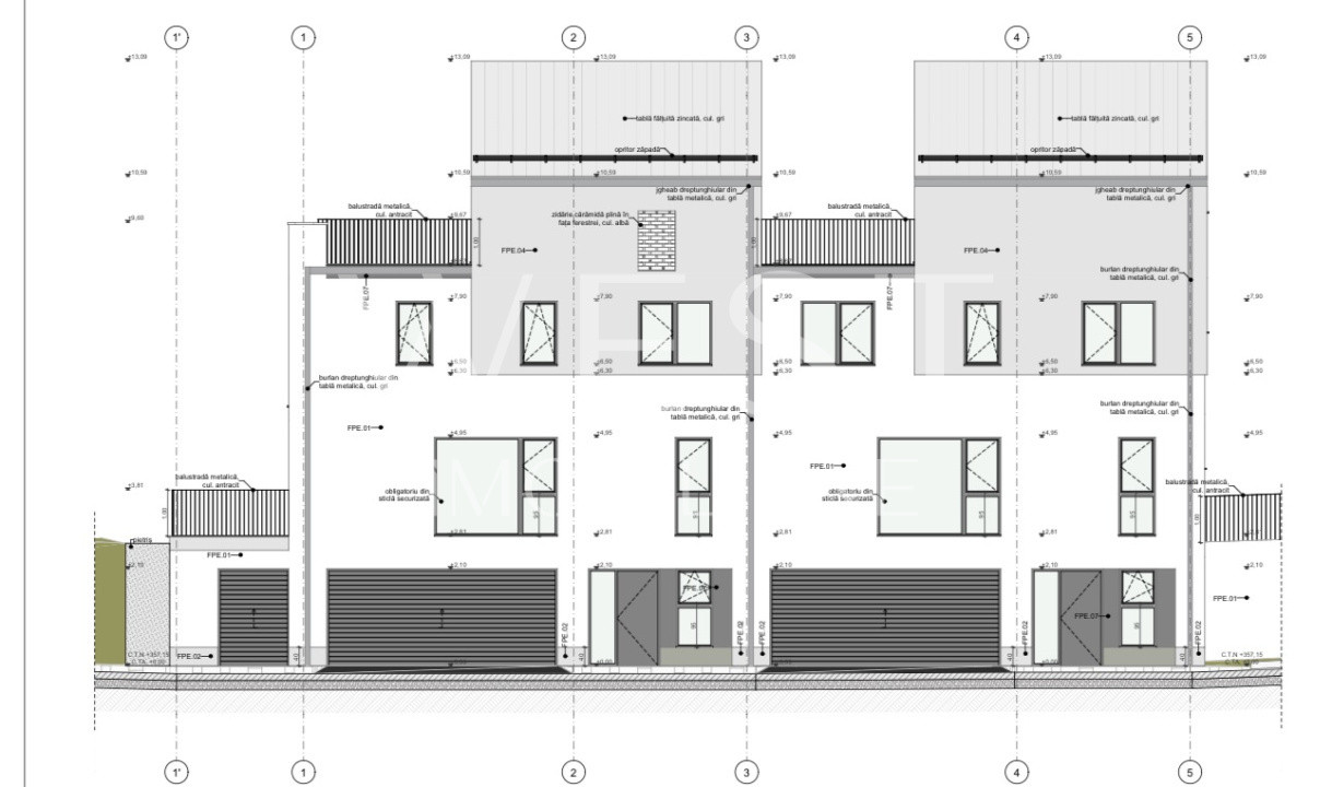
Teren intravilan cu autorizație de construcție pentru doua case de tip duplex , 4 unități locative!
Terenul se afla într-o zona aflata în plina dezvoltare , foarte aproape de ansamblul OMNIA! Suprafață utila este de 1400mp cu front 22,8m la drumu asfaltat , cu toate utilitățile și anume GAZ , Curent , Apa , Canal și fibra optica la marginea terenului!
Situație juridica clara!
Citeste mai mult
Terenul se afla într-o zona aflata în plina dezvoltare , foarte aproape de ansamblul OMNIA! Suprafață utila este de 1400mp cu front 22,8m la drumu asfaltat , cu toate utilitățile și anume GAZ , Curent , Apa , Canal și fibra optica la marginea terenului!
Situație juridica clara!
Specificatii
Curent
Apa
Canalizare
Gaz
Telefon
Acces internet
Fibra optica
Radu F. Lupulescu
0799 333 334
Esti interesat de aceasta proprietate ?