

Teren 750mp autorizat casa individuala | POPESTI | CORUSU
Corusu 98
65.000€
- ID:WST3365
- S. teren:750.00 mp
- Front stradal:14.00 m
- Clasificare teren:Intravilan
Descriere
Teren cu suprafață de 750mp situat la liziera pădurii , zona Popesti , sat Corușu , cu acces din drum asfaltat .
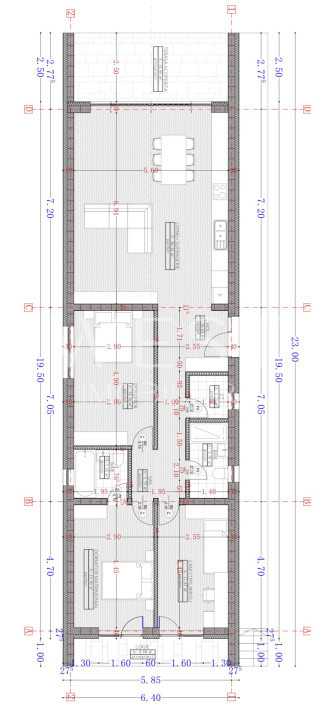
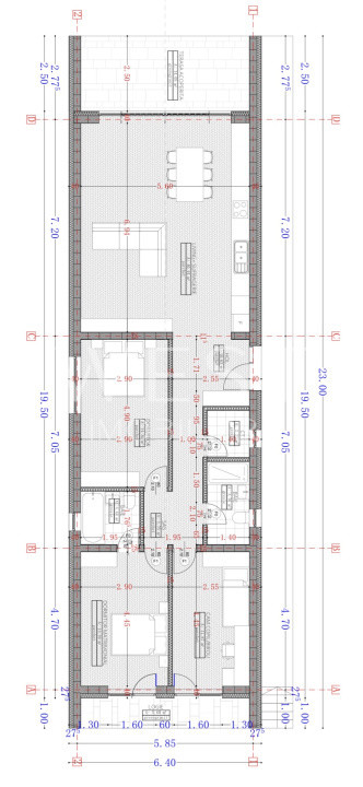
Autorizația este emisă pentru construire CASA UNIFAMILIALA , pe un singur nivel cu amprenta la sol de 140mp și suprfata utila de 120mp.
Terenul dispune la limita de proprietate de Curent și Apa !
Situație juridica clara! Posibilitatea începerii imediata a construcției!
Citeste mai mult
Autorizația este emisă pentru construire CASA UNIFAMILIALA , pe un singur nivel cu amprenta la sol de 140mp și suprfata utila de 120mp.
Terenul dispune la limita de proprietate de Curent și Apa !
Situație juridica clara! Posibilitatea începerii imediata a construcției!
Specificatii
Curent
Apa
Radu F. Lupulescu
0799 333 334
Esti interesat de aceasta proprietate ?