



Teren autorizat l duplex l 713 mp l Chinteni
Chinteni, Central 47
110.000€
- ID:WST3928
- S. teren:713.00 mp
- Front stradal:20.00 m
- Nr. fronturi:1
- Clasificare teren:Intravilan
- Regim inaltime:P+1
Descriere
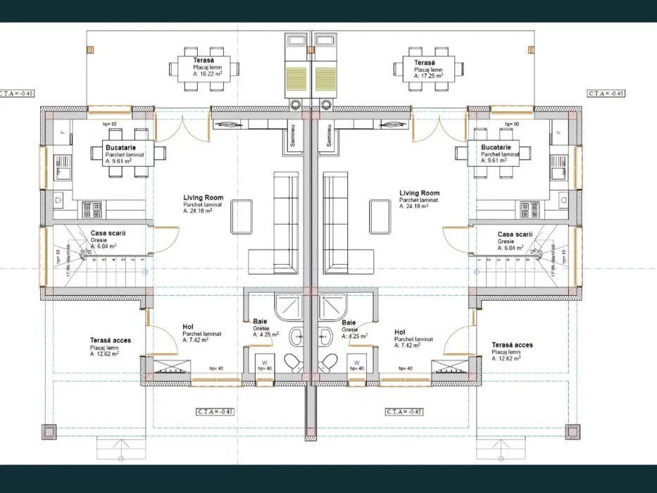
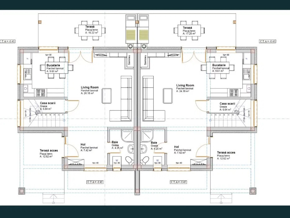
Vand în Chinteni teren intravilan 713 mp/cu proiect autorizat pentru duplex. Regim de înălțime, parter + etaj .Suprafata construită pentru o unitate locativa este de 147,90 mp. Cu parcare +grădină. Terenul este situat în ZONA CENTRALĂ, Chinteni ! Cu toate utilitățile trase pe proprietate și funcționale. Teren cu drumul asfaltat+rigola! Terenul se află la 2 minute distanță de HUB-UL EDUCATIONAL! Foarte aproape de pădure!
Cu ieșire direct in strada principala!
Zona liniștită!
Pentru detalii ne puteti contacta telefonic.
Citeste mai mult
Cu ieșire direct in strada principala!
Zona liniștită!
Pentru detalii ne puteti contacta telefonic.
Specificatii
Curent
Apa
Canalizare
Gaz
Iuliu Chereches
0799 333 334
Esti interesat de aceasta proprietate ?