


Hala industriala noua l 570 mp utili l 1234 mp teren l Apahida
Apahida, str. Libertatii 61
630.000€
Camere
1
Suprafata utila
570 mp
Parcari
5
An constructie
2026
- ID:WST3888
- Nr. camere:1
- S. utila:570.00 mp
- S. curte:734.00 mp
- Comp.:Open space
- Nr. bai:2
- Nr. parcari:5
- An constructie:2026
- Structura rezistenta:Placi
- Regim inaltime:P+1
- Inaltime:6.00 m
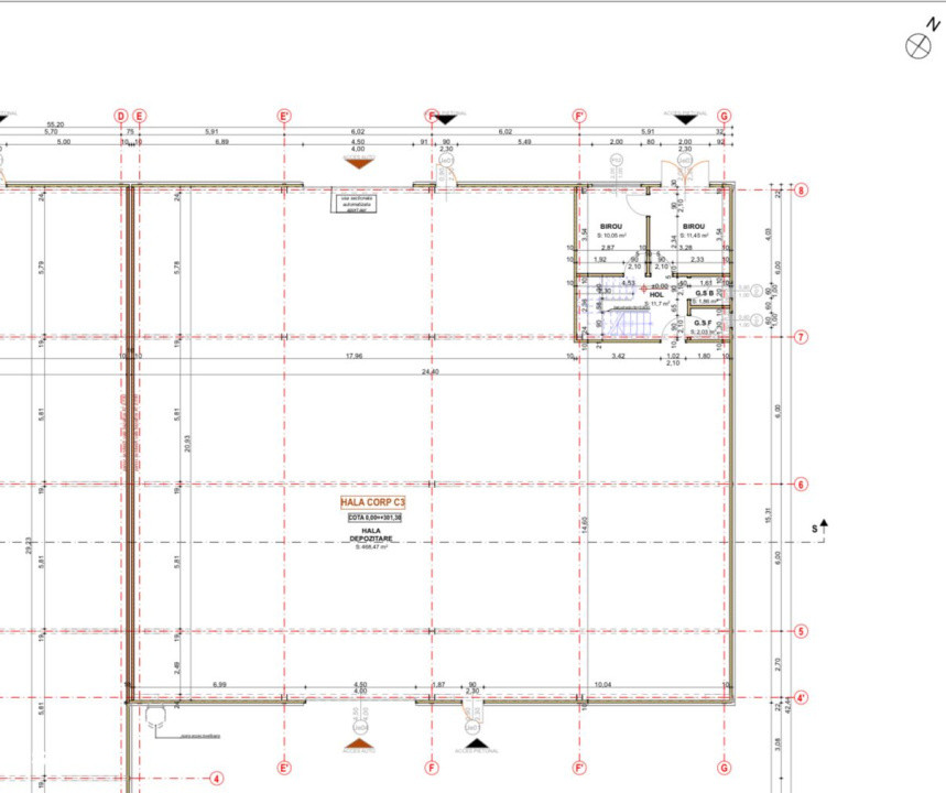
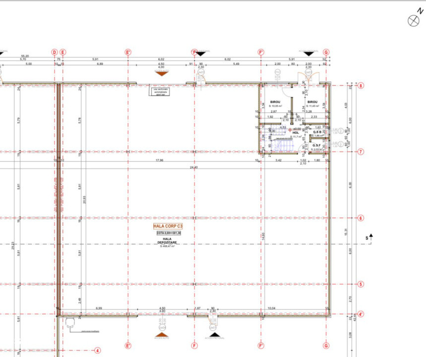
Descriere
Va propun spre vanzare o hala industrială nouă, aflată în curs de execuție, situată în Apahida, într-o zonă industrială cu acces foarte bun și în continuă dezvoltare. Proprietatea face parte dintr-un ansamblu de trei hale, fiecare urmând să beneficieze de carte funciară individuală.Hala are o suprafață de 570 mp și o înălțime utilă minimă de 6 m, fiind construită pe structură metalică, cu placă din beton elicopterizat. Accesul se face prin două uși secționale, la care se adaugă uși pietonale separate. Terenul total este de 1234 mp, incluzând amprenta construcției, iar exteriorul va fi amenajat pentru a permite manevrarea facilă auto.Proprietatea beneficiază de acces TIR și de dublă deschidere la drum: un drum principal cu lățime de 9 m și un drum secundar de 7,5 m, aspect care oferă un avantaj important pentru activități logistice sau de producție.În interior sunt prevăzute și amenajate la cheie două birouri, două grupuri sanitare și o sală de ședințe, astfel încât spațiul să poată fi utilizat imediat după finalizare. Hala este racordată la curent trifazic, apă și canalizare și dispune de panouri solare.Imobilul este potrivit pentru service-uri auto, statii ITP, depozitare, producție sau activități industriale și reprezintă o investiție solidă într-o zonă cu potențial ridicat de creștere. Imobilul se vinde de pe persoana fizica.Pentru informații suplimentare sau programarea unei vizionări, mă puteți contacta telefonic.
Citeste mai mult
Specificatii
Curent
Apa
Canalizare
Gaz
Aer conditionat
Ventiloconvectoare
Ferestre Termopan
Lampi
Spoturi
Iuliu Chereches
0799 333 334
Esti interesat de aceasta proprietate ?