





Aceasta proprietate a fost deja inchiriata! Pentru oferte similare contactati agentul
inchiriat
Spatiu comercial/servicii | 67mp | zona Bonjour Residence | Parter
Cluj-Napoca, Buna-Ziua 178
1.100€
Camere
6
Suprafata utila
67 mp
- ID:WST1831
- Nr. camere:6
- S. utila:67.00 mp
- Comp.:Compartimentat
- Nr. bai:2
- Structura rezistenta:Caramida
- Tip imobil:Bloc
- Regim inaltime:P+8
Descriere
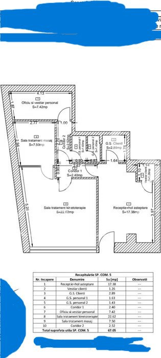
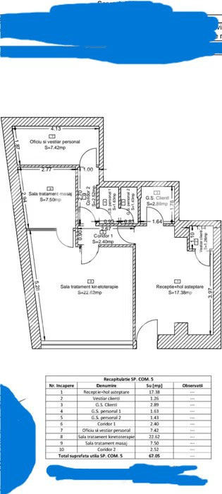
Vă oferim spre închiriere un spațiu ideal pentru servicii profesionale, situat în cartierul Buna Ziua, o zonă bine cotată, cu acces facil la multiple puncte de interes și trafic pietonal constant.
Spațiul are o vitrină generoasă și o suprafață de 67 mp, fiind compartimentat inteligent:
3 camere
2 băi
Spațiu de recepție
Facilități & Dotări
Încălzire proprie prin centrală pe gaz
Aer condiționat
Finisaje moderne
Se închiriază fără mobilierul din poze
Avantaje locație
Este situat aproape de Rotmed, Remedium Farm, parcarea LIDL și Grand Hotel Italia, oferind vizibilitate excelentă și acces facil pentru clienți.
Datorită poziționării și configurației sale, spațiul este potrivit pentru cabinete medicale, saloane de înfrumusețare, birouri sau alte activități de servicii profesionale.
Pentru mai multe detalii sau o vizionare, nu ezitați să ne contactați!
Citeste mai mult
Spațiul are o vitrină generoasă și o suprafață de 67 mp, fiind compartimentat inteligent:
3 camere
2 băi
Spațiu de recepție
Facilități & Dotări
Încălzire proprie prin centrală pe gaz
Aer condiționat
Finisaje moderne
Se închiriază fără mobilierul din poze
Avantaje locație
Este situat aproape de Rotmed, Remedium Farm, parcarea LIDL și Grand Hotel Italia, oferind vizibilitate excelentă și acces facil pentru clienți.
Datorită poziționării și configurației sale, spațiul este potrivit pentru cabinete medicale, saloane de înfrumusețare, birouri sau alte activități de servicii profesionale.
Pentru mai multe detalii sau o vizionare, nu ezitați să ne contactați!
Specificatii
Curent
Apa
Canalizare
Gaz
CATV
Telefon
Acces internet
Fibra optica
Centrala proprie
Calorifere
Aer conditionat
Izolatie Exterior
Bloc izolat termic
Vopsea lavabila
Faianta
Parchet
Gresie
Ferestre PVC
Ferestre Termopan
Lampi
Lumina naturala
Apometre
Contor gaz
Nemobilat
Interfon
Sorana Ionasanu
0799 333 334
Esti interesat de aceasta proprietate ?