

Spatiu comercial de inchiriat l vad bun l vitrina l Calea Floresti
Cluj-Napoca, Manastur / Calea Floresti 112
2.000€
Camere
3
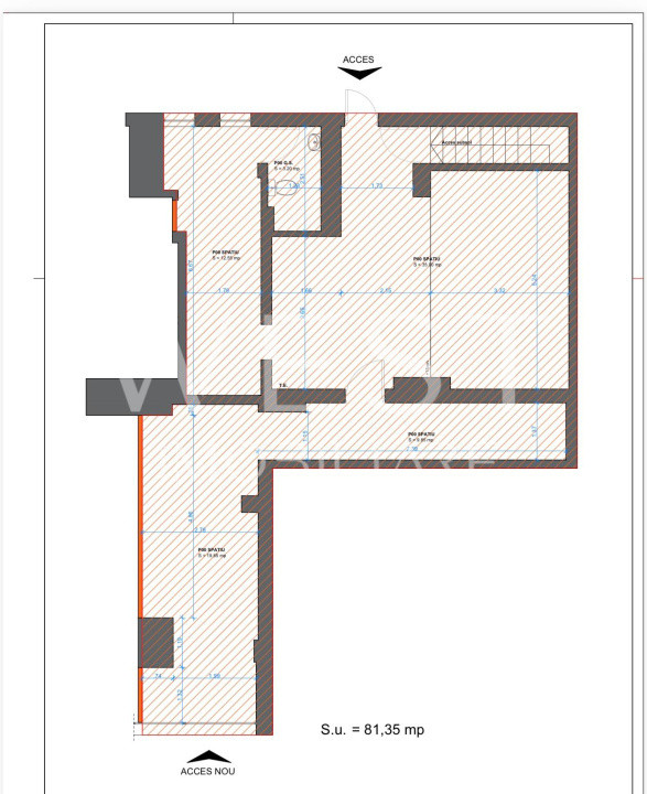
Suprafata utila
81.50 mp
- ID:WST3450
- Nr. camere:3
- S. utila:81.50 mp
- S. vitrina:8.00 m
- Comp.:Compartimentat
- Nr. bai:2
- An renovare:2010
- Structura rezistenta:Caramida
- Tip imobil:Bloc
- Regim inaltime:P+10
Descriere
Se ofera spre inchiriere spatiu comercial situat intr-o zona cu trafic intens, pe Calea Floresti, Cuj-Napoca, ideal pentru diverse activitati comerciale, servicii, cabinet, showroom sau alte concepte de business.
Spatiul are o suprafata utila totala de aproximativ 81,5 Mp si beneficiaza de 2 accese, ceea ce permite o flexibilitate foarte buna de utilizare.
Posibilitate de inchiriere intehrala sau partiala
Compartimentare flexibila, realizabila in functie de nevoile si conceptul chiriasului
Potrivit pentru una sau mai multe activitati ( open space, zone separate, birouri, receptie, etc.)
Acces facil si vizibilitate buna.
Spatiul poate fi adaptat si compartimentat conform cerintelor clientului final, oferind libertate totala de amenajare.
Imaginile sunt cu titlu de prezentare si au rol orientativ pentru a evidentia potentialul spatiului.
Locatie:
Calea Floresti, Cluj-Napoca - zona cu vad comercial, acces facil la transport public si flux constant de persoane.
Pentru mai multe detalii sau pentru stabilirea unei vizionari, nu ezita sa ne contactati!
Citeste mai mult
Spatiul are o suprafata utila totala de aproximativ 81,5 Mp si beneficiaza de 2 accese, ceea ce permite o flexibilitate foarte buna de utilizare.
Posibilitate de inchiriere intehrala sau partiala
Compartimentare flexibila, realizabila in functie de nevoile si conceptul chiriasului
Potrivit pentru una sau mai multe activitati ( open space, zone separate, birouri, receptie, etc.)
Acces facil si vizibilitate buna.
Spatiul poate fi adaptat si compartimentat conform cerintelor clientului final, oferind libertate totala de amenajare.
Imaginile sunt cu titlu de prezentare si au rol orientativ pentru a evidentia potentialul spatiului.
Locatie:
Calea Floresti, Cluj-Napoca - zona cu vad comercial, acces facil la transport public si flux constant de persoane.
Pentru mai multe detalii sau pentru stabilirea unei vizionari, nu ezita sa ne contactati!
Specificatii
Curent
Apa
Canalizare
Gaz
Centrala proprie
Calorifere
Aer conditionat
Izolatie Exterior
Vopsea lavabila
Parchet
Gresie
Ferestre Termopan
Lampi
Apometre
Contor caldura
Contor gaz
Nemobilat
Interfon
Control electric individual
Iuliu Chereches
0799 333 334
Esti interesat de aceasta proprietate ?