









Spatiu comercial premium l 441 MP | Vad comercial l Marasti
Cluj-Napoca, Iris / Fabricii de Zahar 105
4.500€ + TVA
Camere
2
Suprafata utila
441 mp
Parcari
2
An constructie
2020
- ID:WST3159
- Nr. camere:2
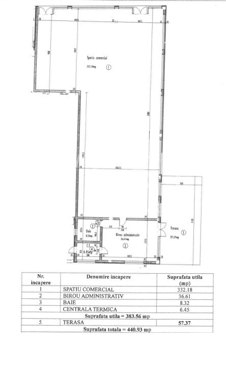
- S. utila:441.00 mp
- S. vitrina:12.00 m
- Front stradal:12.00 m
- Comp.:Open space
- Nr. bai:1
- Terase:57
- Nr. parcari:2
- An constructie:2020
- An renovare:2020
- Structura rezistenta:Caramida
- Tip imobil:Bloc
- Regim inaltime:P+3
- Risc seismic:Clasa IV
- Garantie:4500
Descriere
Iti propun spre inchiriere un spatiu comercial premium, situat la parteerul unui imobil modern, pe srada Fabricii de zahar, una dintre zonele cu cea mai buna dezvoltare comerciala din Cuj Napoca.
Spatiul beneficiaza de:
Suprafata totala generoasa de 441 MP, ideal pentru configurare flexibila
Fatada ampla cu vitrina catre circulatia pietonala si auto, perfecta pentru vizibilitate maxima
Acces dublu: Intrare principala+ acces secundar pentru aprovizionare
terasa proprie de 57 MP, ideala pentru activitati HORECA, showroom sau zona outdoor
|Compartimentare practica,: open space, grup sanitar, birou
Inaltime potrivita pentru activitati comerciale
Posibilitate de personalizare completa in functie de domeniu
Avantaje:
Situat intr-un cartier in plina expansiune, cu trafic intens
In apropiere de centre rezidentiale noi, birou si zone de interes
Acces facil atat in zona Marasti cat si in zona Fabricii
Posibilitate de parcare atat in proximitate cat si acces rapid la transportul public
Potrivit pentru:
supermarket/minimarket
sala de fitness/studio sport
coffee shop/bistro
showroom
farmacie
clinici medicale
magazine specializate
Comisionul agenției este de 100% pentru client.
Citeste mai mult
Spatiul beneficiaza de:
Suprafata totala generoasa de 441 MP, ideal pentru configurare flexibila
Fatada ampla cu vitrina catre circulatia pietonala si auto, perfecta pentru vizibilitate maxima
Acces dublu: Intrare principala+ acces secundar pentru aprovizionare
terasa proprie de 57 MP, ideala pentru activitati HORECA, showroom sau zona outdoor
|Compartimentare practica,: open space, grup sanitar, birou
Inaltime potrivita pentru activitati comerciale
Posibilitate de personalizare completa in functie de domeniu
Avantaje:
Situat intr-un cartier in plina expansiune, cu trafic intens
In apropiere de centre rezidentiale noi, birou si zone de interes
Acces facil atat in zona Marasti cat si in zona Fabricii
Posibilitate de parcare atat in proximitate cat si acces rapid la transportul public
Potrivit pentru:
supermarket/minimarket
sala de fitness/studio sport
coffee shop/bistro
showroom
farmacie
clinici medicale
magazine specializate
Comisionul agenției este de 100% pentru client.
Specificatii
Curent
Apa
Canalizare
Gaz
Centrala proprie
Aer conditionat
Ventiloconvectoare
Izolatie Exterior
Vopsea lavabila
Gresie
Pardoseala flotanta
Apometre
Contor caldura
Contor gaz
Nemobilat
Interfon
Control electric individual
Supraveghere video
Iuliu Chereches
0799 333 334
Esti interesat de aceasta proprietate ?