


Casa individuala NOUA | 147mp UTIL | 5 camere | 700mp teren | SALICEA
Salicea 89
235.000€
Camere
5
Suprafata utila
147 mp
Bai
3
An constructie
2025
- ID:WST3449
- Nr. camere:5
- Nr. dormitoare:4
- S. utila:147.00 mp
- S. teren:700.00 mp
- Nr. bucatarii:1
- Nr. bai:3
- An constructie:2025
- Structura rezistenta:Caramida
Descriere
Casa individuală cu 4 camere cu suprafață utila de 147mp și teren de 700mp, situat in localitatea Salicea, zona liniștită intr-o continua dezvoltare , fiind aproape de puncte de interes , restaurante și terase!
Casa se afla în zona centrală a localității , la doar 5 minute de stație de autobuz, cu acces facil către oraș fiind la doar 20 minute distanță de CENTRUL CLUJULUI!
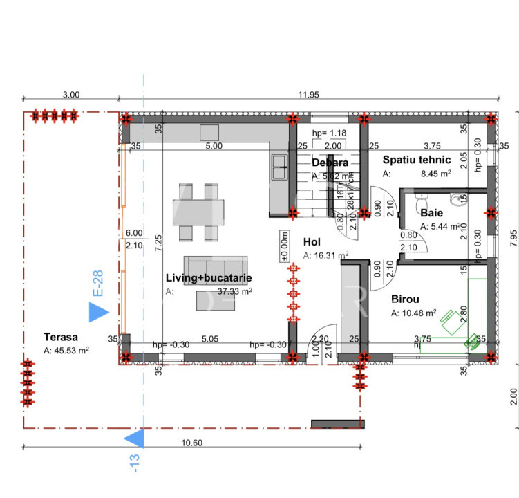
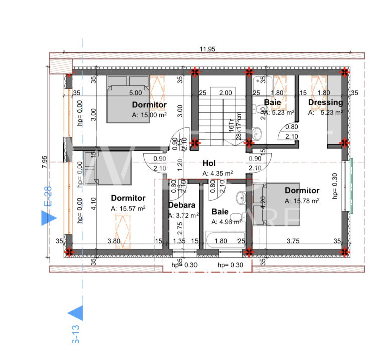
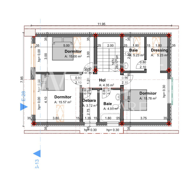
Casa are regim de înălțime parter + un etaj , si este compartimentată astfel modern la parter fiind un living cu bucătărie open-space , birou , camera tehnica , baie și casa scării , iar la etaj 2 dormitoare, decada , baie și dormitor matrimonial cu baie proprie și dressing.
Casa se preda la stadiul de semifinisat, structura de cărămidă, sistem de încălzire cu pompe de caldura si încălzire prin pardoseala, sapa, pereții tencuiți și gletuiți, instalațiile electrice si sanitare pe poziții, izolație cu polistiren de 15cm EPS 80, tâmplărie PVC termopan cu 5 camere si 3 foi de sticla!
Casa dispune de curent, apa, stație de epurare!
Situație juridica clara! Se accepta plata și prin credit ipotecar!
Citeste mai mult
Casa se afla în zona centrală a localității , la doar 5 minute de stație de autobuz, cu acces facil către oraș fiind la doar 20 minute distanță de CENTRUL CLUJULUI!
Casa are regim de înălțime parter + un etaj , si este compartimentată astfel modern la parter fiind un living cu bucătărie open-space , birou , camera tehnica , baie și casa scării , iar la etaj 2 dormitoare, decada , baie și dormitor matrimonial cu baie proprie și dressing.
Casa se preda la stadiul de semifinisat, structura de cărămidă, sistem de încălzire cu pompe de caldura si încălzire prin pardoseala, sapa, pereții tencuiți și gletuiți, instalațiile electrice si sanitare pe poziții, izolație cu polistiren de 15cm EPS 80, tâmplărie PVC termopan cu 5 camere si 3 foi de sticla!
Casa dispune de curent, apa, stație de epurare!
Situație juridica clara! Se accepta plata și prin credit ipotecar!
Specificatii
Curent
Apa
Fibra optica
Incalzire pardoseala
Izolatie Exterior
Ferestre PVC
Ferestre Termopan
Usa intrare Metal
Apometre
Radu F. Lupulescu
0799 333 334
Esti interesat de aceasta proprietate ?