







Casa tip duplex 4 camere+Garaj,182mp utili+gradina!Zona Cetatea Fetei!
Floresti 226
250.000€
Camere
4
Suprafata utila
182 mp
Bai
2
An constructie
2024
- ID:WST511
- Nr. camere:4
- Nr. dormitoare:3
- S. utila:182.00 mp
- S. terase:80.00 mp
- S. teren:150.00 mp
- Nr. bucatarii:1
- Nr. bai:2
- Nr. balcoane:2
- Nr. parcari:2
- Nr. garaje:1
- An constructie:2024
- Structura rezistenta:Caramida
- Regim inaltime:S+P+1
Descriere
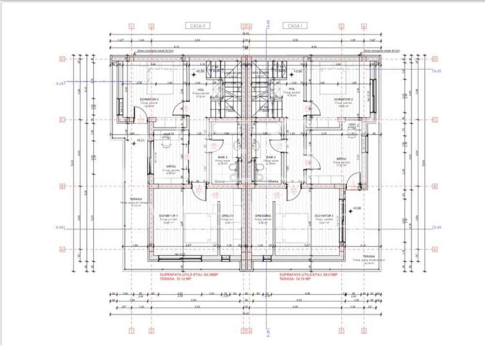
De vânzare două case cuplate deosebite, situate pe strada Alexandru cel Mare din comuna Florești. Aceste imobile sunt ideale pentru cei care își doresc confort și spațiu generos într-o zonă liniștită.
**Casa 1**
- Suprafață utilă: 181.45 mp
- Terase: 89.30 mp
Se predă la stadiul de semifinisat, care include:
1. Finisaje exterioare
2. Instalații electrice, termice, sanitare
3. Tâmplărie PVC
4. Șape
5. Tencuială + 1 strat glet
6. Amenajare teren
7. Împrejmuire
**Preț: 215.000€**
**Casa 2**
- Suprafață utilă: 183.84 mp
- Terase: 89.34 mp
Se predă la stadiul de semifinisat, care include:
1. Finisaje exterioare
2. Instalații electrice, termice, sanitare
3. Tâmplărie PVC
4. Șape
5. Tencuială + 1 strat glet
6. Amenajare teren
7. Împrejmuire
**Preț: 250.000€**
Alături găsiți planurile și randările detaliate ale acestor imobile. Nu ratați ocazia de a achiziționa casa visurilor într-o locație excelentă!
Pentru mai multe informații și vizionări, nu ezitați să ne contactați.
Citeste mai mult
**Casa 1**
- Suprafață utilă: 181.45 mp
- Terase: 89.30 mp
Se predă la stadiul de semifinisat, care include:
1. Finisaje exterioare
2. Instalații electrice, termice, sanitare
3. Tâmplărie PVC
4. Șape
5. Tencuială + 1 strat glet
6. Amenajare teren
7. Împrejmuire
**Preț: 215.000€**
**Casa 2**
- Suprafață utilă: 183.84 mp
- Terase: 89.34 mp
Se predă la stadiul de semifinisat, care include:
1. Finisaje exterioare
2. Instalații electrice, termice, sanitare
3. Tâmplărie PVC
4. Șape
5. Tencuială + 1 strat glet
6. Amenajare teren
7. Împrejmuire
**Preț: 250.000€**
Alături găsiți planurile și randările detaliate ale acestor imobile. Nu ratați ocazia de a achiziționa casa visurilor într-o locație excelentă!
Pentru mai multe informații și vizionări, nu ezitați să ne contactați.
Specificatii
Curent
Apa
Canalizare
Gaz
CATV
Telefon
Acces internet
Fibra optica
Centrala proprie
Incalzire pardoseala
Calorifere
Izolatie Exterior
Ferestre PVC
Usa intrare Metal
Usa interior Celulare
Pivnita
Spatiu depozitare
WC Serviciu
Apometre
Contor gaz
Curte
Gradina
Radu F. Lupulescu
0799 333 334
Esti interesat de aceasta proprietate ?