



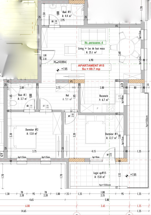
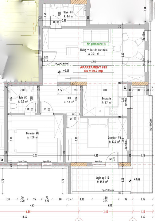
Ap 3 camere 70mp util + 18mp terasa | Semifinisat | Str. Eroilor
Floresti 91
140.000€
Camere
3
Suprafata utila
70 mp
Etaj
Etaj 2
Bai
2
An constructie
2026
- ID:WST3391
- Nr. camere:3
- Nr. dormitoare:1
- S. utila:70.00 mp
- S. terase:16.00 mp
- Comp.:Semidecomandat
- Confort:1
- Etaj:Etaj 2
- Nr. bucatarii:1
- Nr. bai:2
- Nr. balcoane:1
- An constructie:2026
- Structura:Caramida
- Tip imobil:Bloc
- Regim inaltime:D+P+3
- Orientare:Sud-Est
- Clasa energetica:B
Descriere
Apartament 3 camere situat în zona Str. Eroilor , într-un ansamblu nou cu finalizare în toamna anului 2026, situat la doar câteva minute de magazine de tip supermarket precum PROFI Market , Mega Image , farmacii , saloane de înfrumusețare , parcuri și spații de joaca pentru copii și de școală și grădiniță de stat Dumitru Tautan!
Apartamentul are o suprafață utila de 70mp + terasa cu suprafață de 16mp și este compartimentat modern având living cu bucătărie open-space , doua dormitoare , doua bai și hol , dispune de centrală termică proprie , pe gaz cu încălzire prin pardoseala , tâmplărie PVC tripan REHAU cu 6 camere și feronerie premium cu siguranță pentru copii , izolatie exterioara a blocului cu termosistem de 15cm și tencuieli decorative anti-umezeala , pentru a crea un confort termic sporit și cheltuieli scăzute la întreținere!
Exista posibilitatea achiziționării unei parcări exterioare la prețul de 6000euro sau subterana la prețul de 9000euro!
Citeste mai mult
Apartamentul are o suprafață utila de 70mp + terasa cu suprafață de 16mp și este compartimentat modern având living cu bucătărie open-space , doua dormitoare , doua bai și hol , dispune de centrală termică proprie , pe gaz cu încălzire prin pardoseala , tâmplărie PVC tripan REHAU cu 6 camere și feronerie premium cu siguranță pentru copii , izolatie exterioara a blocului cu termosistem de 15cm și tencuieli decorative anti-umezeala , pentru a crea un confort termic sporit și cheltuieli scăzute la întreținere!
Exista posibilitatea achiziționării unei parcări exterioare la prețul de 6000euro sau subterana la prețul de 9000euro!
Specificatii
Curent
Apa
Canalizare
Gaz
Acces internet
Fibra optica
Centrala proprie
Incalzire pardoseala
Izolatie Exterior
Ferestre PVC
Ferestre Termopan
Usa intrare Metal
Apometre
Contor gaz
Interfon
Lift
Radu F. Lupulescu
0799 333 334
Esti interesat de aceasta proprietate ?