







Apartament 3 camere | Tip Penthouse | Sup. 133,55 | CF | EROILOR
Floresti, Eroilor 93
174.000€
Camere
3
Suprafata utila
69.30 mp
Etaj
Etaj 3
Bai
2
- ID:WST3272
- Nr. camere:3
- Nr. dormitoare:2
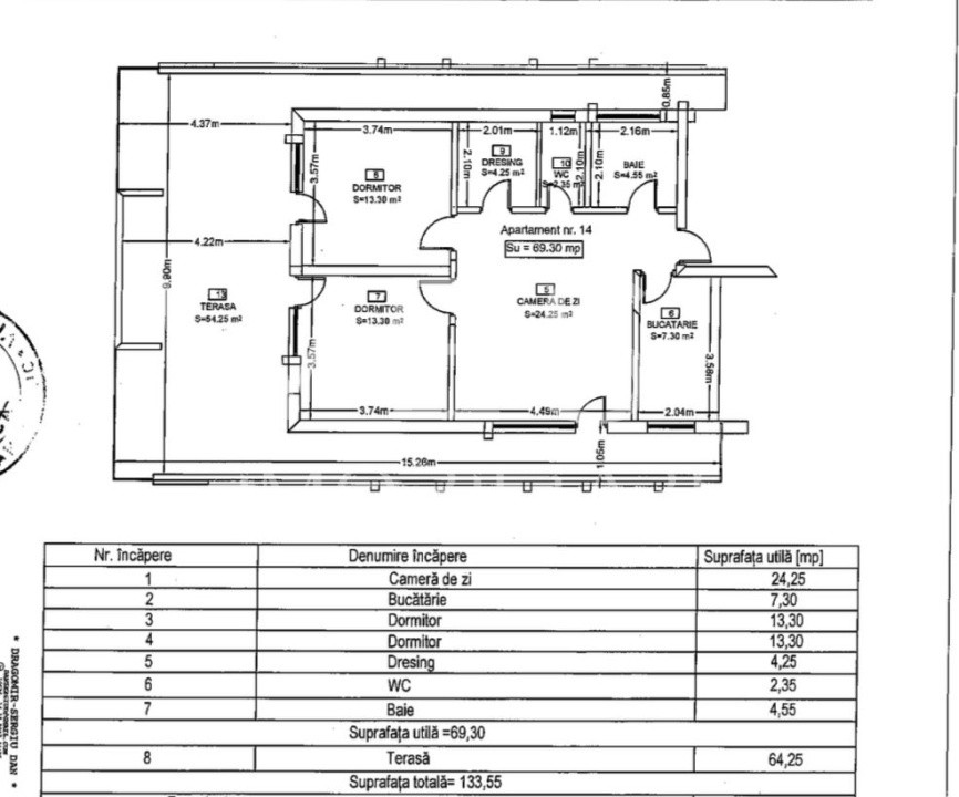
- S. utila:69.30 mp
- S. terase:64.25 mp
- Comp.:Decomandat
- Etaj:Etaj 3
- Nr. bucatarii:1
- Nr. bai:2
- Structura:Caramida
- Tip imobil:Bloc
- Regim inaltime:P+3
- Orientare:Sud-Est
Descriere
Apartament cu 3 camere, tip penthouse, situat pe strada Eroilor, în zona Spartan, o zonă centrală, bine cotată și cu acces facil la toate facilitățile urbane necesare unui stil de viață confortabil.
Apartamentul are o suprafață utilă de 69 mp și beneficiază de o terasă deosebită de 64 mp, ideală pentru relaxare, petrecerea timpului liber sau organizarea momentelor plăcute alături de familie și prieteni.
Compartimentarea este modernă și eficientă, fiind alcătuită din două dormitoare, un living spațios, bucătărie, o baie principală cu geam, o baie de serviciu, precum și terasa generoasă, care oferă un plus semnificativ de confort și intimitate.
Imobilul se predă în stadiu de semifinisat, având incluse ferestre cu geam termopan tripan, pereți gletuiți, ușă metalică la intrare, centrală termică proprie pe gaz cu încălzire prin calorifere, precum și toate utilitățile trase pe poziții, oferindu-vă posibilitatea de a-l personaliza după propriile preferințe.
Zona este excelent deservită de magazine precum Penny, Carrefour și Profi, stații pentru mijloacele de transport în comun, precum și grădiniță și școală de stat, toate aflate în imediata apropiere.
Apartamentul dispune de Carte Funciară disponibilă și se poate achiziționa inclusiv prin credit bancar.
Opțional, se poate achiziționa parcare exterioară, la prețul de 4.000 euro.
Pentru mai multe informații sau pentru a programa o vizionare, vă stau cu drag la dispoziție.
Citeste mai mult
Apartamentul are o suprafață utilă de 69 mp și beneficiază de o terasă deosebită de 64 mp, ideală pentru relaxare, petrecerea timpului liber sau organizarea momentelor plăcute alături de familie și prieteni.
Compartimentarea este modernă și eficientă, fiind alcătuită din două dormitoare, un living spațios, bucătărie, o baie principală cu geam, o baie de serviciu, precum și terasa generoasă, care oferă un plus semnificativ de confort și intimitate.
Imobilul se predă în stadiu de semifinisat, având incluse ferestre cu geam termopan tripan, pereți gletuiți, ușă metalică la intrare, centrală termică proprie pe gaz cu încălzire prin calorifere, precum și toate utilitățile trase pe poziții, oferindu-vă posibilitatea de a-l personaliza după propriile preferințe.
Zona este excelent deservită de magazine precum Penny, Carrefour și Profi, stații pentru mijloacele de transport în comun, precum și grădiniță și școală de stat, toate aflate în imediata apropiere.
Apartamentul dispune de Carte Funciară disponibilă și se poate achiziționa inclusiv prin credit bancar.
Opțional, se poate achiziționa parcare exterioară, la prețul de 4.000 euro.
Pentru mai multe informații sau pentru a programa o vizionare, vă stau cu drag la dispoziție.
Specificatii
Curent
Apa
Canalizare
Gaz
CATV
Telefon
Acces internet
Fibra optica
Utilitati in zona
Centrala proprie
Calorifere
Izolatie Exterior
Ferestre PVC
Usa intrare Metal
Interfon
Richard Matyas
0799 333 334
Esti interesat de aceasta proprietate ?