







Apartament de vânzare | 56 mp utili | Strada Balastierei, Florești
Floresti, Sens Giratoriu 62
90.000€
Camere
2
Suprafata utila
56 mp
Etaj
Etaj 2
Bai
1
Parcari
1
- ID:WST3820
- Nr. camere:2
- S. utila:56.00 mp
- Comp.:Decomandat
- Confort:1
- Etaj:Etaj 2
- Nr. bucatarii:1
- Nr. bai:1
- Nr. balcoane:1
- Nr. parcari:1
- Structura:Caramida
- Tip imobil:Bloc
- Regim inaltime:S+P+6
Descriere
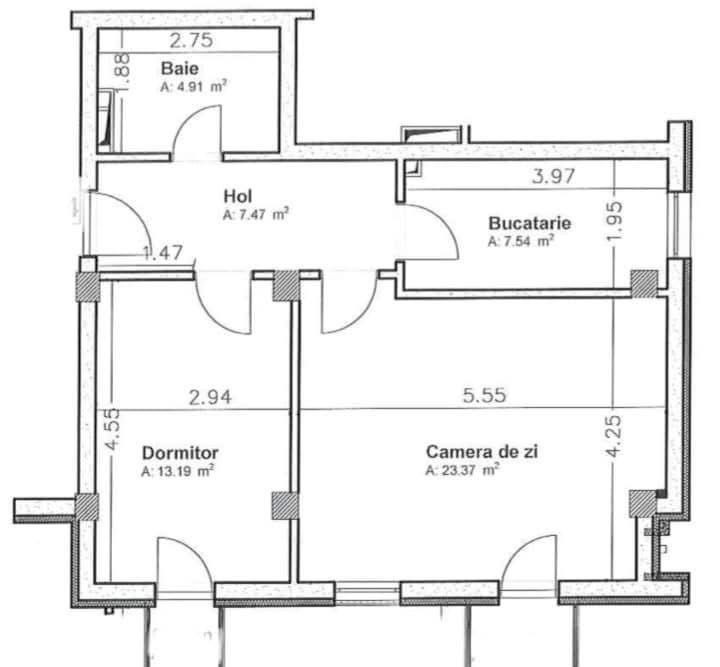
De vânzare , apartament modern cu 2 camere decomandate, situat pe Strada Balastierei nr. 2, într-un ansamblu rezidențial construit în anul 2020. Proprietatea este amplasată la etajul 2 al unui imobil dotat cu lift și oferă un echilibru ideal între confort, liniște și acces rapid către Cluj-Napoca prin Centura Grigorescu.
Apartamentul are o suprafață utilă de 56,5 mp și beneficiază de două balcoane cu suprafața totală de 3,9 mp, la care se adaugă un balcon franțuzesc. Compartimentarea este eficientă și bine gândită, fiind compusă din două camere generoase și complet separate, bucătărie închisă, hol spațios și baie dotată cu cadă. Bucătăria este luminoasă și complet utilată, inclusiv cu mașină de spălat vase.
Locuința oferă o priveliște plăcută către curtea interioară a ansamblului, asigurând liniște și intimitate. Complexul dispune de curte privată spațioasă, acces restricționat doar pentru locatari și sistem de supraveghere video, ceea ce contribuie la un nivel ridicat de siguranță și confort.
În prețul proprietății este inclus și un loc de parcare exterior, situat în curtea privată a ansamblului.
Zona este apreciată pentru accesul facil către oraș, dar și pentru proximitatea față de magazine, stații de autobuz și alte facilități utile vieții de zi cu zi. Apartamentul reprezintă o alegere ideală atât pentru locuire personală, cât și pentru investiție, oferind confort, mobilitate și un cadru rezidențial liniștit.
Citeste mai mult
Apartamentul are o suprafață utilă de 56,5 mp și beneficiază de două balcoane cu suprafața totală de 3,9 mp, la care se adaugă un balcon franțuzesc. Compartimentarea este eficientă și bine gândită, fiind compusă din două camere generoase și complet separate, bucătărie închisă, hol spațios și baie dotată cu cadă. Bucătăria este luminoasă și complet utilată, inclusiv cu mașină de spălat vase.
Locuința oferă o priveliște plăcută către curtea interioară a ansamblului, asigurând liniște și intimitate. Complexul dispune de curte privată spațioasă, acces restricționat doar pentru locatari și sistem de supraveghere video, ceea ce contribuie la un nivel ridicat de siguranță și confort.
În prețul proprietății este inclus și un loc de parcare exterior, situat în curtea privată a ansamblului.
Zona este apreciată pentru accesul facil către oraș, dar și pentru proximitatea față de magazine, stații de autobuz și alte facilități utile vieții de zi cu zi. Apartamentul reprezintă o alegere ideală atât pentru locuire personală, cât și pentru investiție, oferind confort, mobilitate și un cadru rezidențial liniștit.
Specificatii
Curent
Apa
Canalizare
Gaz
CATV
Acces internet
Utilitati in zona
Centrala proprie
Calorifere
Bloc izolat termic
Vopsea lavabila
Faianta
Parchet
Gresie
Ferestre Termopan
Usa interior Lemn
Terasa
Dressing
Bucatarie Mobilata
Apometre
Contor gaz
Complet mobilat
Interfon
Lift
Curte comuna
Denys Birsan
0799 333 334
Esti interesat de aceasta proprietate ?