







Apartament 2 camere + terasa | Ansamblu PREMIUM | zona Stadionului
Floresti 165
73.299€
Camere
2
Suprafata utila
37 mp
Etaj
Parter
Bai
1
An constructie
2025
- ID:WST2937
- Nr. camere:2
- Nr. dormitoare:1
- S. utila:37.00 mp
- S. balcoane:8.20 mp
- Etaj:Parter
- Nr. bucatarii:1
- Nr. bai:1
- Nr. balcoane:1
- An constructie:2025
- Structura:Caramida
- Tip imobil:Bloc
- Regim inaltime:P+5
Descriere
Vă propunem spre vânzare un apartament cu 2 camere, într-un ansamblu rezidential bine organizat. Complexul este format din 4 imobile elegante cu regim redus de înălțime (S+P+4+Etaj retras), desfășurate pe un teren generos de 6.845 mp. Oferă 152 apartamente moderne (1, 2 și 3 camere), completate de: parcări subterane și supraterane, spații verzi atent amenajate, locuri de joacă pentru copii, alei pietonale cu bănci și căi de acces dedicate atât pietonilor, cât și autovehiculelor
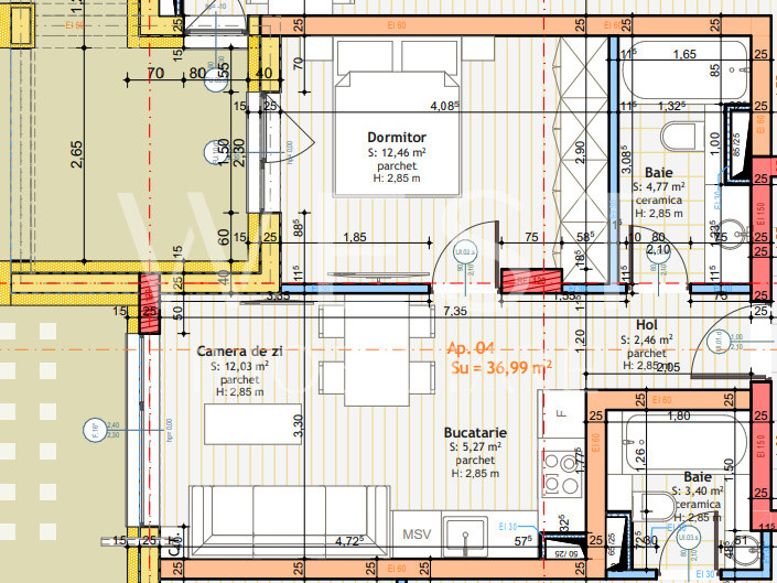
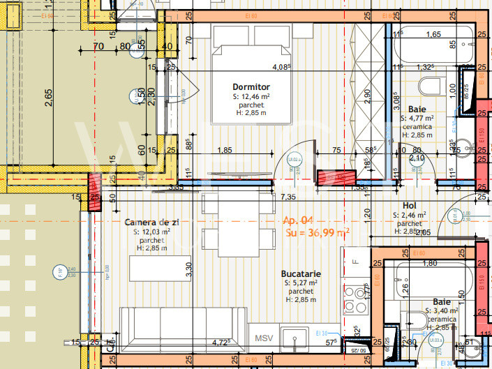
Detalii apartament:
- etaj : parter
- suprafață utilă: 37 mp
- balcon/terasă: 8 mp
- compartimentare: dormitor, bucătărie cu living, baie, hol
Locație: acces facil către Cluj-Napoca și principalele puncte de interes, la doar 8 minute de Vivo! și Metro, în apropiere: centre comerciale, magazine, săli de sport, stații de autobuz, puncte de încărcare pentru mașini electrice, grădiniță nou construită la câteva minute de mers pe jos
Calitate construcție: structură din beton armat și zidărie de cărămidă (11,5 – 25 cm) cu izolație termică și fonică,
drum asfaltat până la imobil, parcări asfaltate/pavate, casa scării finisată complet, cu lift
Apartamentul se predă semifinisat la prețul afișat cu pereți gletuiți, pardoseli predate cu șapă semiuscată, geamuri tripan cu tâmplărie PVC și uși de acces pe balcon, instalații electrice și sanitare trase pe poziții, încălzire în pardoseală cu centrală termică în condensare, terase cu hidroizolații și balustrade.
La cerere, poate fi predat complet finisat, la prețul de 76 650 euro cu pereți tencuiți și vopsiți cu lavabilă albă, parchet/gresie, uși interioare, băi echipate cu obiecte sanitare (vas WC, lavoar, baterii incluse).
📞 Pentru detalii suplimentare și vizionări, vă stăm la dispoziție.
Citeste mai mult
Detalii apartament:
- etaj : parter
- suprafață utilă: 37 mp
- balcon/terasă: 8 mp
- compartimentare: dormitor, bucătărie cu living, baie, hol
Locație: acces facil către Cluj-Napoca și principalele puncte de interes, la doar 8 minute de Vivo! și Metro, în apropiere: centre comerciale, magazine, săli de sport, stații de autobuz, puncte de încărcare pentru mașini electrice, grădiniță nou construită la câteva minute de mers pe jos
Calitate construcție: structură din beton armat și zidărie de cărămidă (11,5 – 25 cm) cu izolație termică și fonică,
drum asfaltat până la imobil, parcări asfaltate/pavate, casa scării finisată complet, cu lift
Apartamentul se predă semifinisat la prețul afișat cu pereți gletuiți, pardoseli predate cu șapă semiuscată, geamuri tripan cu tâmplărie PVC și uși de acces pe balcon, instalații electrice și sanitare trase pe poziții, încălzire în pardoseală cu centrală termică în condensare, terase cu hidroizolații și balustrade.
La cerere, poate fi predat complet finisat, la prețul de 76 650 euro cu pereți tencuiți și vopsiți cu lavabilă albă, parchet/gresie, uși interioare, băi echipate cu obiecte sanitare (vas WC, lavoar, baterii incluse).
📞 Pentru detalii suplimentare și vizionări, vă stăm la dispoziție.
Specificatii
Curent
Apa
Canalizare
Gaz
Centrala proprie
Incalzire pardoseala
Bloc izolat termic
Ferestre PVC
Ferestre Termopan
Usa intrare Metal
Interfon
Lift
Iuliu Chereches
0799 333 334
Esti interesat de aceasta proprietate ?